facebook
Property Image
Property Image
Property Image
Property Image
Property Image
Property Image
Property Image
Property Image
Property Image
Property Image
Property Image
Property Image
Property Image
Property Image
Property Image
Property Image
Property Image
Property Image
Property Image
Property Image
Property Image
Property Image
Property Image
Property Image
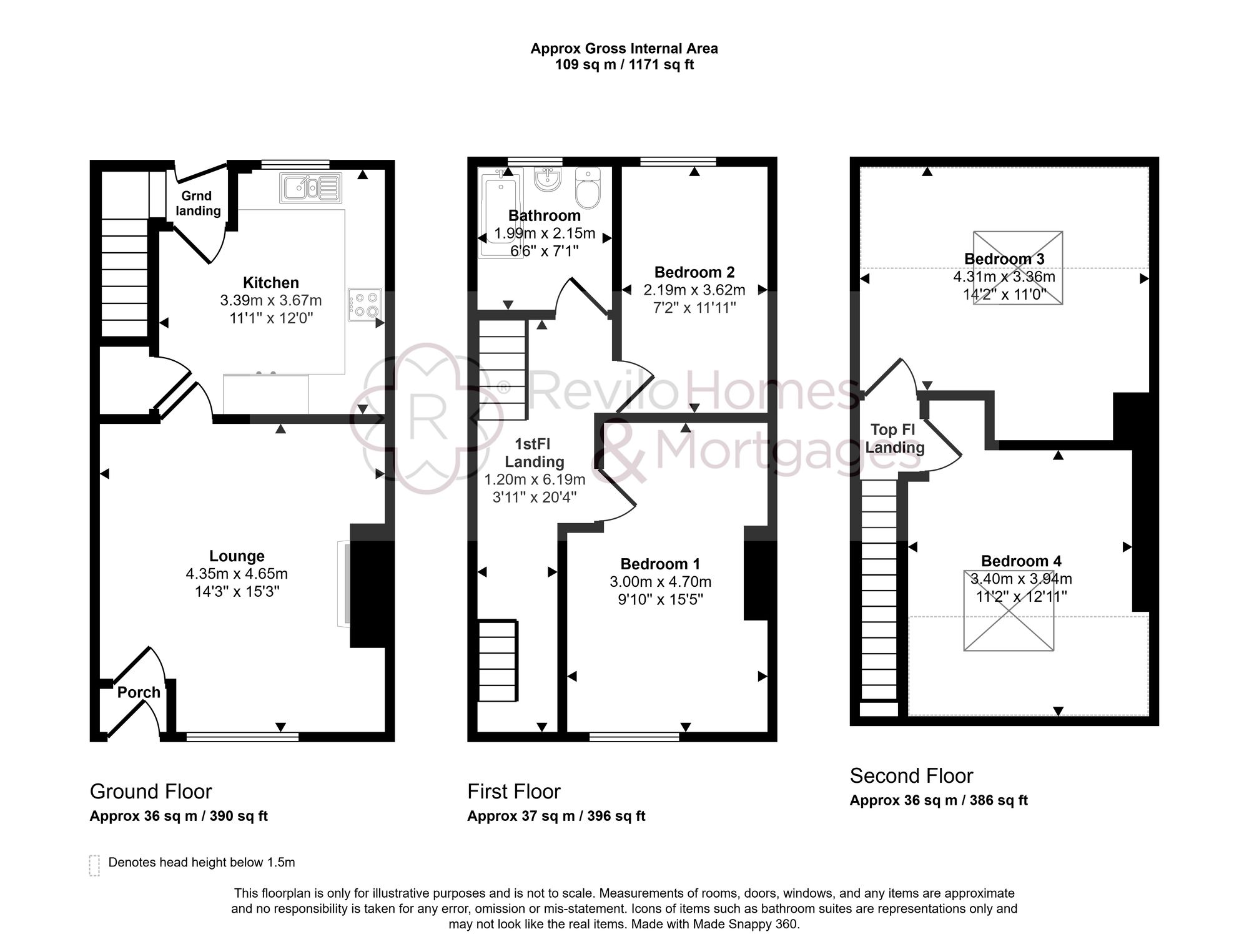
floorplan
epc

4 Beds - House - Sold STC Mosshey Street, Shaw, OL2
£189,950

  • 4
  • 1
  • 2

Situated in the sought-after Shaw location, this superb 4-bedroom terraced house presents an excellent opportunity for first-time buyers and astute investors alike.

Key Features

  • Fantastic First-Time Buyer Opportunity

  • Popular Shaw Location

  • Gas central heating and double glazing

  • Walking distance to Shaw centre, Metrolink and local shops

  • No Onwards Chain

  • Freehold

  • Viewings highly recommended to appreciate the size

  • EPC rating: C

  • Amazing Investment Opportunity

Situated in the sought-after Shaw location, this superb 4-bedroom terraced house presents an excellent opportunity for first-time buyers and astute investors alike. Boasting a convenient setting, this property offers easy access to Shaw centre, Metrolink, and a variety of local amenities, making it an ideal choice for those seeking a vibrant urban lifestyle.

This charming home features gas central heating and double glazing throughout, ensuring comfort and efficiency all year round. With no onward chain to contend with, this freehold property provides a hassle-free purchasing experience, allowing you to move in or start generating rental income without delay.

The spacious interior includes four well-proportioned bedrooms, offering ample space for a growing family or the potential for a home office or guest accommodation. The property's neutral decor provides a blank canvas for personalisation, allowing you to create a space that truly reflects your individual style.

The generous layout includes a living room, providing a welcoming space for relaxation and entertaining, while the well-equipped kitchen offers a practical area for culinary pursuits. A family bathroom completes the accommodation, ensuring convenience for residents and guests alike.

This property benefits from an EPC rating of C, reflecting its energy-efficient design and environmental sustainability. Whether you're looking to take your first step onto the property ladder or expand your investment portfolio, this home promises both immediate appeal and long-term potential.

Viewings are highly recommended to fully appreciate the size and potential of this property. Contact us today to arrange a viewing and seize this amazing opportunity to secure a property in this highly desirable location.


Location

Looking to buy ?

Register for property updates

Register